Timeline

Dates are approximate - this is definitely work in progress!! Some OS maps have been taken from old-maps.co.uk but I believe some of these dates are incorrect as the 1979 map shows the school without the extensions (science, lecture theatre, music and rural science) but the earlier 1972 map shows them added. Some plans are taken from the council planning portal. My knowledge of the site is 1991 - 2002.

 

Pre 1896 - believe that the school was a split boys / girls school. The boys school was the building behind Trevenson Church (became the Design and Make Centre) The girls school is adjacent to the ‘Maths block’ and became a primary school (later was used as the Link into Learning). The former infant school was the opposite side of the road - became a social club.

 

1896 - Pool School combined building is built (most of us know this as the Maths block)

 

1950s? - ‘Canteen’ building added

    - ‘Science’ building added

1964/5? - Additional building behind the science building added - Elliot hut?

    - Elliot hut added ’L’

 

 

1970s? - Elliot huts added ‘M&N, F&G’

    - Pratten building added (Staff room)

1972? - ROSLA block added to provide woodwork/metalwork workshops (A&E), library (C), typing (B) and careers (D) classrooms?

 

Building behind the ‘science’ block was removed at some point and the tennis courts were moved further along the playing field to make way for the Camborne School of Mines site.

 

1973? - ‘New’ site construction begins

Does anybody know why the old-site was retained? Lack of funding to build enough accommodation for the whole school? Maybe the old-site was initially disused but then back-filled as numbers grew?

 

The old site was known as ‘Lower School’ for years 1 & 2 (later 7&8) and the new site was ‘Upper School’ for years 3-5 (later 9-11)

 

1980s? - Additional Science classrooms (57, 58, 59), Lecture Theatre, Rural Science and Music Block added.

 

? - Old site science prep room (rear of room J) is used for motorcycle maintenance tuition - Mr Barnes

 

1983 - Old site science classroom (J) becomes computer room

?    - Old site typing room (B) becomes computer room

 

??     - Car workshop (37) has roller door removed and becomes technical drawing.

 

1992 - School becomes ‘Pool School & Community College’ and opens it’s facilities to the local community.

    - Community Lounge is created in room 114

    - Room B becomes History. Room D becomes Geography

    - Room K becomes a second computer room.

    - Room G (Home economics) moved to Room H. (Room G becomes storage)

    - Room 57 (Geography) returned to use as a science lab.

    - Cloakrooms in English and Language corridors are made into ‘Study areas’

    - Room 73 (part of canteen) becomes PSE / Geography classroom.

    - Room 110 (part of canteen) used as creche.

    - Doors to library are relocated to the former ‘computer’ area to make room for more shelves. The ‘computer’ area of the library is moved alongside the windows facing the quad.

 

Several classrooms are carpeted during this period - 73/74, Community lounge

 

1993 - Rooms ‘M & N’ are condemned and removed (One of these rooms had the model railway club)

 

1993/4 - Old site becomes Keystage 4 (Upper school) and new site KS3 (lower school).

    - Head of lower school post abolished (Mr Oddy becomes deputy head).

    - Former lower school office becomes careers office

    - Former careers area adjacent to library becomes SEN - curtain along corridor is removed and a window/doorway is added. Former careers office has a doorway added to make a cut-through to the library.

    - Room K becomes business studies

    - Room 4 (RE / Child Development) becomes DT

    - Smaller art rooms (41/42) have doorway created to be used as one larger room.

 

1994 -  Room J refurbished and original science lab benches are removed - room gets a carpet.

 

1995 - Rooms ‘F & G’ are condemned but remain for storage.

    - Elliot added to new site behind CDT workshops ‘E1,E2, E3’

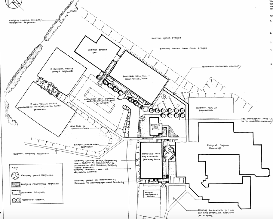
    - Sports Hall added on old five-a-side pitch above tennis courts.

 

 

 

 

 

 

 

 

 

 

 

 

 

 

 

 

 

 

 

 

 

 

 

 

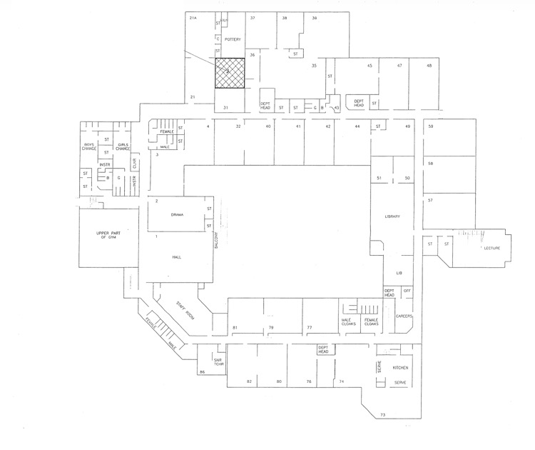
1998 - Area under the library (entrance to the quad) is closed in to make an additional classroom.

    - A lift is added adjacent to this.

    - A store room is added to the sports hall.

    - The courtyard next to the pottery room is closed in to form additional indoor space.

 

2001 - Rooms ‘F & G’ are removed

 

 

 

 

 

 

 

 

 

 

 

 

 

 

 

 

 

 

 

 

 

 

 

 

 

 

 

 

 

 

 

2002 - Construction of new Hall / Drama building adjacent to sports hall.

Construction of new Art/Maths block adjacent to former music block / Gym.

Conversion of old music block to classrooms.

Renovation of main school building including swapping classroom under former library to be community lounge, room 114 is returned to a language room in it’s place.

Old hall and drama studio converted to 2x ICT suites with the library on a mezzanine floor.

Old library becomes 3x humanities classrooms.

Old art rooms (32/40) become CDT room. Old art rooms (41/42) become science lab.

Restructure of former pottery area & technical drawing.

Canteens removed - first floor is restructured including rooms 73&74 to form 3 classrooms, the first for English and the other two for humanities.

Tennis courts changed use to staff car park. New tennis courts built at the rear of existing and on the cricket nets below.

Offices at the front of the school are extended by a couple of metres to occupy the overhang of the floor above.

Grass area between the lecture theatre and side entrance is removed and a playground is put in its place.

Lockers are removed from the English and Languages corridors to make more space. These are placed in the former study areas instead.

 

 

2003 - ‘Old’ site dis-used

    - Entrance to school is extended to match the extension to the school office.

2004 - Former all-weather pitch is converted to synthetic grass MUGA with flood lighting.

2005 - former Lecture Theatre converted to a third ICT suite. A false floor was built to keep the room at 1st floor level. The remainder of the void under the floor is retained for storage.

 

2007 - Old-site demolished except for the maths block.

 

??? - Former staff room converted to become library.

 

2011 - School becomes ‘Pool Academy’

Footbridge removed

 

2016 - Housing estate started on former ‘Camborne School of Mines’ site and former ‘old-site’ leaving only the Maths block.

1908

1963

1979

1966

This website makes use of cookies. Please see our privacy policy for details.

OK